Casa indipendente in vendita

San Martino Alfieri, Via asti
€ 129.000
10 locali 10 locali
200 Mq 200 Mq
2 bagni 2 bagni

Casa indipendente in vendita

San Martino Alfieri, Via asti

Descrizione annuncio

Casa indipendente nel Comune di San Martino Alfieri, posizione Panoramica a ridosso della bellissima terrazza Belvedere, ideale per chi cerca spazio e comfort.

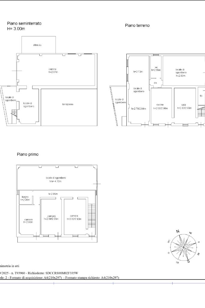
Il Cascinale, costruito nel 1940 e ristrutturato nel 2000, si sviluppa su più livelli e offre una disposizione funzionale degli ambienti. Al suo interno, si trovano dieci locali, tra cui quattro ampie camere da letto con affaccio su cortile privato due bagni e tre ulteriori stanze versatili, adatte a diverse esigenze.

La proprietà dispone di un balcone con vista panoramica perfetto per momenti di relax all'aperto. Un magazzino e due box auto, garantiscono ampio spazio per il parcheggio.

Il giardino curato nei minimi dettagli offre un'oasi di tranquillità e un'area verde da godere in ogni stagione. Questa casa rappresenta un'opportunità unica per chi desidera vivere in un contesto tranquillo,in uno dei Paesi piu' affascinante della Regione, senza rinunciare alla comodità degli spazi.

Mostra tutto

Nelle vicinanze

Scuole Scuole
Scuole
1,9 Km
Farmacia Farmacia
Farmacia
1,7 Km
Ristoranti Ristoranti
Concordia
210 m
La Rosa Blu
740 m
Cava dei Vini
1,9 Km
Eataly in Campagna
2,4 Km
Mostra tutto

Caratteristiche

Rif.:
61141815
Piano:
3 di 3 (Piano su più livelli)
Box:
2
Posti auto:
5
Balconi:
1
Terrazzi:
1
Mostra tutto
Prezzo Prezzo
€ 129.000
Rata mutuo Rata mutuo
€ 609 / mese
Spese annue Spese annue
€ 0
Proponi il tuo prezzoProponi il tuo prezzo

Classe Energetica

G
G
G
G
G
G
G
G
G
EP globale non rinnovabile:
377.61 kW h/m² anno
EP globale rinnovabile:
0.74 kW h/m² anno
EP invernale del fabbricato:
EP estiva del fabbricato:
Anno di costruzione:
1940
Riscaldamento:
Autonomo
Tipo impianto:
A radiatori
Tipo alimentazione:
Metano

Ti interessa visionare l'immobile?

Fissa un appuntamento  Fissa un appuntamento

Richiedi informazioni

Clicca su Leggi per aprire l'informativa
* Questi campi sono obbligatori

Calcola il tuo mutuo

Semplice e senza impegno
Anticipo

( % )
Mutuo

( % )

pochi semplici passi

inserisci i tuoi dati
Questionario completato
Grazie per aver richiesto un appuntamento senza impegno con un nostro Consulente del Credito e Assicurativo.

Hai inserito correttamente tutti i dati necessari e a breve riceverai una e-mail con un link da convalidare per inviare i tuoi dati.
Affiliato
Studio Roi Sas
Via Roma, 36/B 14015 San Damiano D'Asti (AT)

Il nostro staff


  • Cristian Cacciuolo
    Responsabile

  • Silvia Cavallaro
    Responsabile

  • Martina David
    Coordinatrice

  • Marco Moro
    Collaboratore

  • Alessandro Bergamo
    Affiliato
Via Roma, 36/B 14015 San Damiano D'Asti (AT)
Zona: San Damiano D'Asti
Mostra su mappa
Affiliato
Studio Roi Sas
Via Roma, 36/B 14015 San Damiano D'Asti (AT)

2025 Tecnocasa Franchising S.p.A. - P. IVA 08365160152 - Via Monte Bianco 60/A 20089 Rozzano (MI). Ogni agenzia ha un proprio titolare ed è autonoma. Privacy policy | Policy utilizzo | Cookie policy