Casa semindipendente in vendita

San Damiano D'Asti, Borgata Stizza
€ 125.000
8 locali 8 locali
200 Mq 200 Mq
1 bagno 1 bagno

Casa semindipendente in vendita

San Damiano D'Asti, Borgata Stizza

Descrizione annuncio

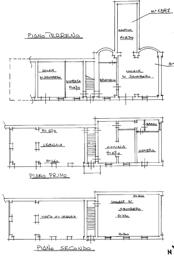
Nel comune di San Damiano d'Asti, proponiamo in vendita una casa semindipendente di 200 mq con giardino privato e terreno adibito a noccioleto, ideale per chi cerca spazio e comfort.

L'immobile, risalente al 1940 e ristrutturato nel 2015, si sviluppa su più livelli e offre un ambiente accogliente e funzionale. Al suo interno, troverete otto locali ben distribuiti, tra cui tre camere da letto, un bagno, un balcone e un terrazzo, perfetti per godere di momenti di relax all'aperto.

La proprietà include anche tre ulteriori camere, offrendo ampie possibilità di personalizzazione degli spazi. Completano l'offerta un box auto e cinque posti auto, garantendo comodità per tutta la famiglia. Il giardino privato rappresenta un'oasi di tranquillità. Questa casa è una soluzione versatile, adatta a diverse esigenze abitative.

Mostra tutto

Nelle vicinanze

Trasporto pubblico Trasporto pubblico
San Damiano (al Piano)
San Damiano (al Piano)
440 m
San Damiano (bv. Gorzano)
San Damiano (bv. Gorzano)
1,1 Km
Scuole Scuole
Scuola Media
1,2 Km
Supermercati Supermercati
Mercatò San Damiano d'Asti
1,4 Km
Carrefour Local
1,5 Km
Penny
1,6 Km
Ristoranti Ristoranti
Eataly in Campagna
2,7 Km
Mostra tutto

Caratteristiche

Rif.:
61111732
Piano:
2 di 3 (Piano su più livelli)
Box:
1
Posti auto:
5
Balconi:
1
Terrazzi:
1
Mostra tutto
Prezzo Prezzo
€ 125.000
Rata mutuo Rata mutuo
€ 573 / mese
Spese annue Spese annue
€ 0
Proponi il tuo prezzoProponi il tuo prezzo

Classe Energetica

F
F
F
F
F
F
F
F
F
EP globale non rinnovabile:
231.94 kW h/m² anno
EP globale rinnovabile:
83.80 kW h/m² anno
EP invernale del fabbricato:
EP estiva del fabbricato:
Anno di costruzione:
1940
Riscaldamento:
Autonomo
Tipo impianto:
A stufa
Tipo alimentazione:
Altro

Ti interessa visionare l'immobile?

Fissa un appuntamento  Fissa un appuntamento

Richiedi informazioni

* Questi campi sono obbligatori

Calcola il tuo mutuo

Semplice e senza impegno
Anticipo

( % )
Mutuo

( % )

pochi semplici passi

inserisci i tuoi dati
Questionario completato
Grazie per aver richiesto un appuntamento senza impegno con un nostro Consulente del Credito e Assicurativo.

Hai inserito correttamente tutti i dati necessari e a breve riceverai una e-mail con un link da convalidare per inviare i tuoi dati.
Affiliato
Studio Roi Sas
Via Roma, 36/B 14015 San Damiano D'Asti (AT)

Il nostro staff


  • Cristian Cacciuolo
    Responsabile

  • Silvia Cavallaro
    Responsabile

  • Martina David
    Coordinatrice

  • Marco Moro
    Collaboratore

  • Alessandro Bergamo
    Affiliato
Via Roma, 36/B 14015 San Damiano D'Asti (AT)
Zona: San Damiano D'Asti
Mostra su mappa
Affiliato
Studio Roi Sas
Via Roma, 36/B 14015 San Damiano D'Asti (AT)

2025 Tecnocasa Franchising S.p.A. - P. IVA 08365160152 - Via Monte Bianco 60/A 20089 Rozzano (MI). Ogni agenzia ha un proprio titolare ed è autonoma. Privacy policy | Policy utilizzo | Cookie policy